ENQUIRE NOW FOR A FREE SITE VISIT - 89395 40008 CLICK HERE FOR FREE SITE VISIT - 89395 40008
sevenhills-desktop-banner sevenhills-mobile-banner

Configurations

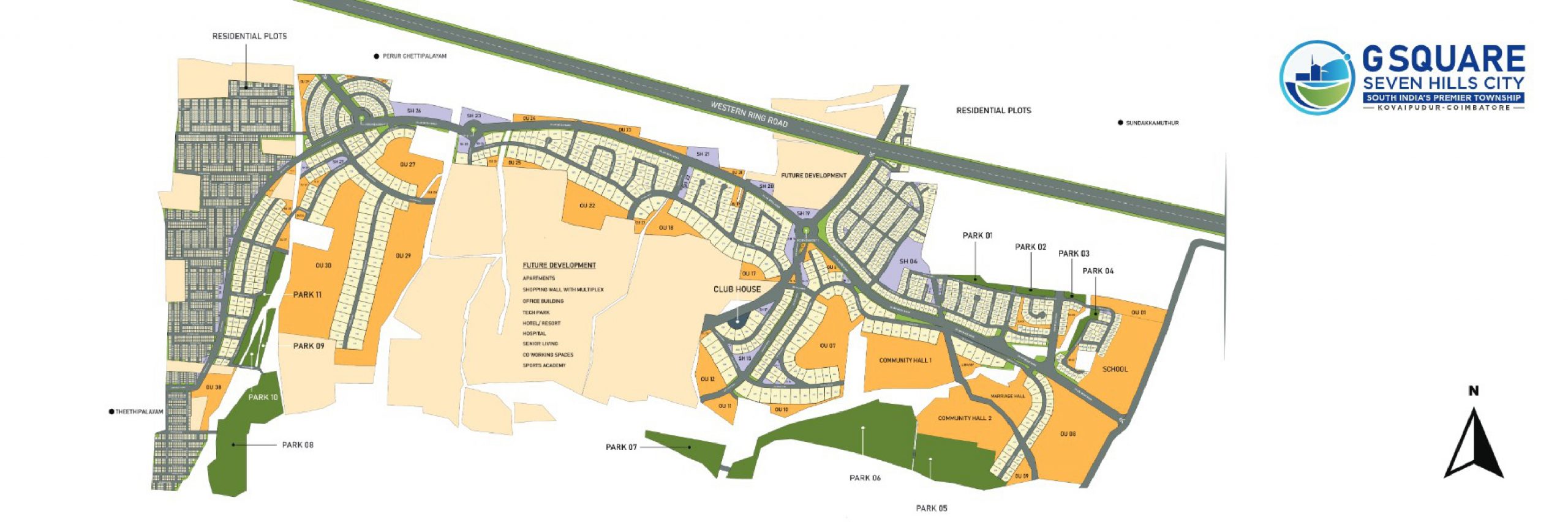
Residential Plots

Area

400 Acres

No of Units

3127 units

Available Size

1.14 Cents Onwards

NA* - This project was approved before the implementation of the RERA act. Hence, RERA registration is not applicable.

Build Your Dream Villa at G Square Seven Hills City Kovaipudur, Coimbatore

It’s time to build your dream villa in the city of Coimbatore! With G Square Seven Hills City, make your dreams come true as you get a splendid opportunity to construct a villa for your family, located in Kovaipudur, Coimbatore.

G Square Seven Hills City Highlights

  • 3127 plots spread across 400 acres.
  • Seamless Western Ring Road Connectivity.
  • Next to CS Academy.
  • Opposite to Sri Krishna College of Technology.
  •  10 mins from Coimbatore junction.
  • TN’s only project with 250+ world-class amenities.
  • One-of-a-kind features like the helipad and clubhouse inside the community.
  • Approved by DTCP.
Enquire now

PRICE TABLE

G Square Price: Rs. 12.9 Lakhs Per Cent Onwards (For First 100 Bookings Only)*

  • Type
    Plot Size
  • Residential Plots
    1.14 Cents Onwards
  • Rate
  • Rs. 12.9 Lakhs Per Cent Onwards
Type Residential Plots
Plot Size 1.14 Cents Onwards
Rate Rs. 12.9 Lakhs Per Cent Onwards*
  • Type
    Plot Size
    Rate
  • Residential Plots
    1.14 Cents Onwards
    Rs. 12.9 Lakhs Per Cent Onwards
Type Plot Size Rate
Residential Plots 1.14 Cents Onwards Rs. 12.9 Lakhs Per Cent Onwards

G Square Seven Hills City Features

Features

A place where a serene environment meets convenient living. Give a treat to your senses by constructing your dream home located within a pristine landscape.

Maintenance

2 Year Free Maintenance

CCTV

24x7 CCTV Surveillance

Streetlight

Internal Roads with streetlights

Ready to construct

Ready To Construct Villa Plots

Maintenance

2 Year Free Maintenance

CCTV

24x7 CCTV Surveillance

Streetlight

Internal Roads with streetlights

Ready to construct

Ready To Construct Villa Plots

Enquire now

Life Around G Square Seven Hills City

With a varied choice of leisure activities right around the corner, you can now live a life of enjoyment and ease.

Master Dei ICSE School 2 Mins
G Square Seven Hills City

Scan for Project RERA QR

RERA ID : TN/11/Layout/1213/2025

Why should you choose G Square Seven Hills City?

Highly coveted Location.
with this exclusive plot located in the most buzzing location of Kovaipudur, Coimbatore, you can be sure to celebrate great returns for building your own home.

Secured Community, Secure Life.
With 24/7 CCTV surveillance and state-of-the-art infrastructure, your family will start their chapter rest assured with a top-tier quality of living. This land for sale in Kovaipudur, Coimbatore, was made to create a lifestyle that is an upgrade in all aspects.

Favorable Price Model.
G Square Seven Hills City, located in the most prestigious location of Kovaipudur, Coimbatore, offers an incomparable lifestyle experience. It’s the most ideal space for those chasing extravagance at reasonable rates.

Enquire now

Bank partners

FAQs

Where is G Square Seven Hills City located?

G Square Seven Hills City is located in Kovaipudur, Coimbatore.
This location has a close proximity to CS Academy, malls, educational institutions, hotels and hospitals.

Is G Square Seven Hills City a good investment in Kovaipudur?

Yes, G Square Seven Hills City is located in Kovaipudur, a peaceful and rapidly developing residential area in Coimbatore. With scenic surroundings and improving infrastructure, the project offers strong potential for long-term investment and appreciation.

Is this project offering the best price in this location?

The price range of different plots for sale in Kovaipudur, Coimbatore varies depending on the size of the plot, location, number of amenities available, and other tax, legal fees and duty considerations. Normally the price range can be around 20- 25 Lakhs . G Square Seven Hills City includes plots of different sizes starting from Rs. 19.35 lakhs Onwards.

 

Does this project have necessary bank approvals?

Yes, major banks approved this project.

Why to buy this project?

TN’s only project with 250+ world-class amenities and One-of-a-kind features like a swimming pool and a drive-in theatre inside the community.

What are the key amenities of this project?

  • Swimming Pool.
  • Clubhouse.
  • Pergola Seating.
  • Pond with Seating Area.
  • Fun Zone.
  • Kid’s Play Area.
  • Barbecue Lawn Fitness Zone.
  • Basketball Court.
  • Jogging Track.
  • Mini Hockey Court.
  • Meet & Greet Zone.

What is the payment structure?

1L: At the time of booking.

10%: Within 7 days from the date of booking.

40%: Within 10 days from the date of booking.

50% within 15 days from the date of booking or registration.

How is connectivity from G Square Seven Hills City?

The project offers good connectivity to Palakkad Road, Kuniyamuthur, and Coimbatore city center. It also provides easy access to schools, hospitals, and major transport hubs.

What makes G Square Seven Hills City a high-demand residential location?

The project is surrounded by scenic hills, schools, and essential facilities. Peaceful environment, strong connectivity, and growing infrastructure make it ideal for both investors and homebuyers.

What are the major modes of transport near this project?

The major modes of transport includes railways, road transport, and airlines.

What is the construction status?

G Square Seven Hills City offers ready-to-construct plots for residential purposes. Book yours now!

What is the nearby landmark for this project?

Next to CS Academy.

Opp to Sri Krishna College of Technology.

What are the salient features of this project?

24*7 CCTV Surveillance.
2 years Free Maintenance.
Well laid black top internal Roads.
Extensive Landscape.

What are the future growth prospects of Kovaipudur, Coimbatore?

Kovaipudur is witnessing steady growth due to its clean environment, residential expansion, and connectivity to Palakkad Road and Coimbatore city. Increasing demand for premium residential plots is expected to drive future property value.

Enquire Now

This field is for validation purposes and should be left unchanged.
home-loan

The project is funded and mortaged with IIFL Home Finance Ltd. and No objection Certificate for the sale of plots of the project is required to be taken from IIFL Home finance Ltd.

DISCLAIMER

Thank you for visiting our website! We greatly appreciate your interest in our offerings and are here to assist with any inquiries or needs you may have. As you explore our services/products, please feel free to reach out to our support team for further assistance. We are dedicated to providing you with the best possible experience. By continuing to use our site, you agree that any details you provide may be collected and used for future communications, updates, or service enhancements. We are committed to safeguarding your privacy, and you can learn more by reviewing our Privacy Policy.
WhatsApp